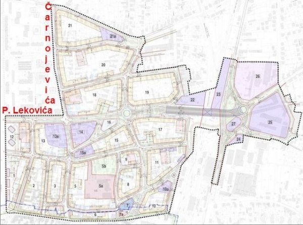
„Severni bulevar“, za one koji su zaboravili to je proboj od ulice Petra Lekovića i Čarnojevićeve do Majšanske petlje, koji prestavlja deo saobraćajnog prstena oko grada ali i zamisao jedne nove urbanističke celine, osovina oko koje bi se koncentrisala gradnja u tom delu grada u kojem dominiraju kuće od naboja.
Zbog blizine centra taj kvart je dobio više novih spratnica. Neke su zauzele poziciju na zamišljenom i u planu ucrtanom bulevaru, dok su druge razbacane po uskim uličicama i bez ikakvih izgleda da nekad budu deo nekog celovitog bloka. Za svaku od od tih zgrada morao je da se gradi novi trafo a i pored izgrađenih parking mesta neizostavni su parkirani automobili po travnjaku i trotoaru.
Nema dakle potrebe posebno objašnjavati šta znači izgradnja po redu i poretku koji može odmah ili u dogledno vreme obezbediti komunalni red a time i komforno stanovanje u novom naselju.
Sama trasa zbog svoje kratkoće, uslovno može nositi titulu BULEVAR. Sa druge strane ta činjenica daje nadu da taj poduhvat možda nije neizvodljiv.
Postoje i razlozi za pesimizam. Poslednjih petnaestak godina, nanizao se čitav spisak gradskih investicija koje su doživele neuspeh i pretvorile se u afere. Izuzetak je završetak 51. divizije i Partizanskig baza. Mada je i tu nemogućnost otkupa samo jedne kuće, odložio radove za 4 godine i primorao projektante da crtaju novu trasu.
U Novom Sadu se probijaju pravi bulevari jedan za drugim. Jedan od njih je dobio ime Subotički. Možda bi nekakva iskustva odatle dobro došla, ako je ikako umesno danas razmišljati i o tom malom bulevarčiću na severu grada.
Pravac Radijalac
Ovde bi bio kružni tok
Jedna novija kuća na trasi
Loš znak. Na sred budućeg bulevara nedavno je završena nova kuća na sprat. Ko je tu pametan ?
Petra Lekovića, nastavak Severnog bulevara
Srodne vesti:
Rušenje kuće za novu Majšansku petlju
Severni bulevar
KOMENTARI
OSTAVITE KOMENTAR
Morate biti prijavljeni da biste komentarisali.













ma hajde zar stvarno mislis da politicari sad o tome razmisljaju. Njima je sad bitno da asfaltiraju 20-ak ulicica, otvore 1-2 fabrike, i uz to krenu u gradnju 5-6 visespratnica, i tako stvore pred izbore privid o idili, a u sustini, sve se raspada…
Ako ima volje, sve se moze, a duboko verujem da posle asfaltiranja ovih 20-ak ulica sto je preostalo, dolazi na red i bulevar.
Cinjenica da je to potrebno ovom gradu, i da su bulevari preduslov ozbiljnije urbanizacije grada. Medjutim ni jedan veliki pothvat gradske uprave, jos od doba SFRJ nije zavrsen. U tekstu se spominje Partizanskih baza kao kapitalno ndostignuce. Slozicu se da je to veliki napredak, ali to nije ni blizu ranga sto podrazumeva bulevar, pogotovo ovaj. Partizanskih baza je prokrcena kroz njive, ima samo 2 trake, nema ni bankine, ni semafor na raskrsnici sa majsanskim putem, a ni adekvatno osvetljenje. Bulevar podrazumeva minimum 4 trake plus nesto uredjenog parkinga, kanalizaciju sa odvodima ispod njega, posto ovde nema prostora za kopanje rova pored trase, osvetljenje, zatim premestiti elektricne vodove pod zemlju,semafore i sve to kroz stambenu cetvrt a ne kroz njivu. Pretpostavljam da bi deo od Karadjordjevog puta do kraja Petra Lekovica i mogli uraditi, jer ne podrazumeva rusenje nekih objekata, vec samo prosirenje kolovoza i propratne aktivnosti. Ali samo iz pobrojanog se vidi da je bulevar tri lige iznad P. Baza. Potreban je ogroman novac.